Rochester Bath

Academic Project

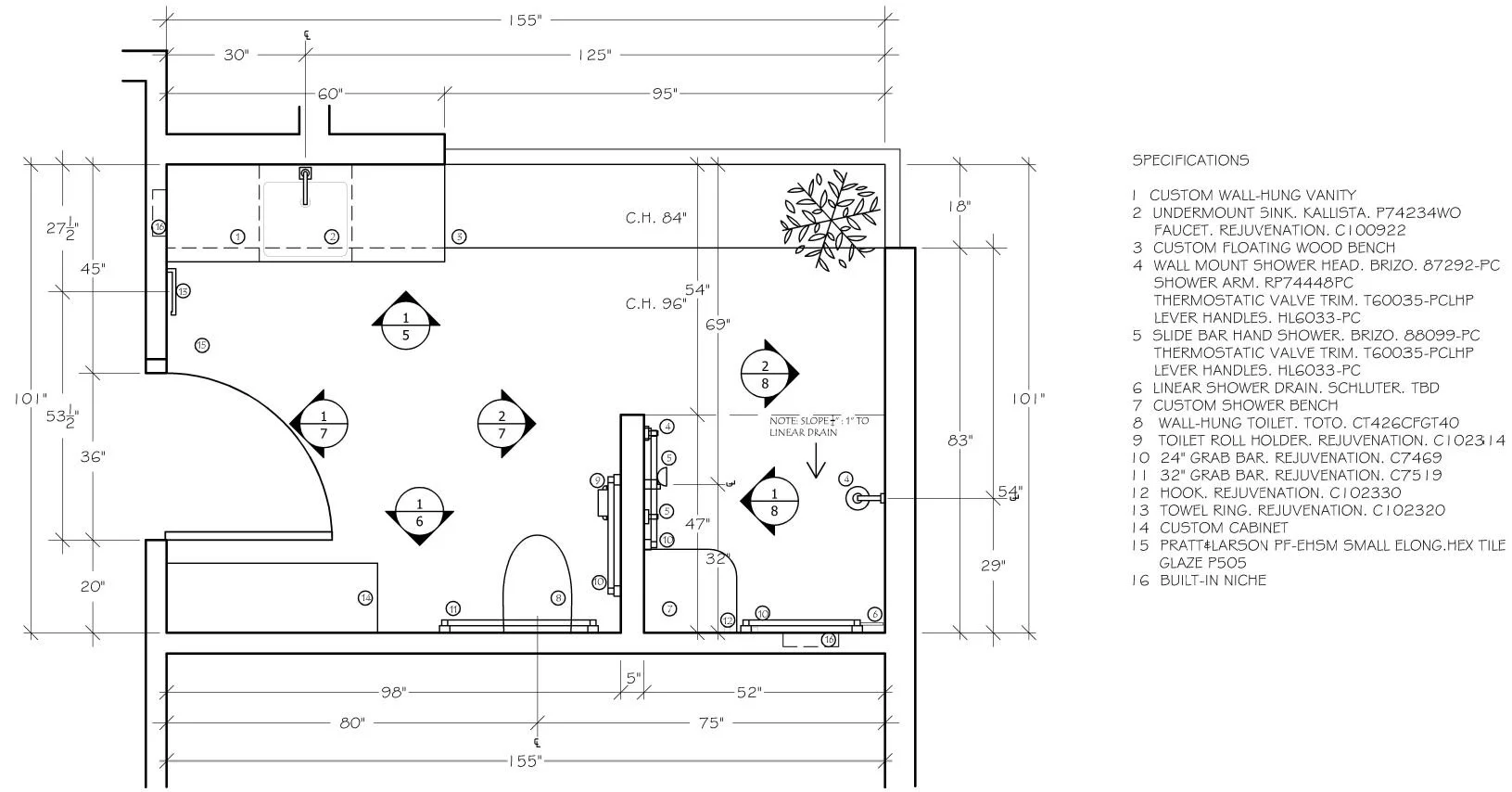
The brief for this project was to create a guest bath that was comfortable, accessible and luxurious.

The new bathroom has an open, functionally progressive layout with generous clearances that allow for easy reach and maneuverability. A custom cabinet across from the vanity provides a lot of storage as well as a place to display beautiful objects. The shower space at the back is almost hidden in plain sight so that this room functions very well aesthetically as a powder room as well. A large span of glazing fills the interior with natural light and provides views to the garden and woods beyond. Smartglass film turns the bottom half or the whole of the glass opaque when more privacy is wanted. A reclaimed wood bench runs the length of the bathroom and provides a place to sit and take a moment. While in-floor heating keeps the space toasty.

The mood of the space is ‘tranquil and dreamy’. Amongst the more contemporary materials, a splash of hand painted tile and cushions in Indian ‘Dabu’ hand-block fabric add just the right amount of softness.