Rochester Kitchen

Academic Project

My clients – a couple with a young daughter – want to update their kitchen to match their lifestyle. As the little one grows, and grandparents visit for longer, it is paramount that their space is functional, accessible and one where the whole family can spend time together.

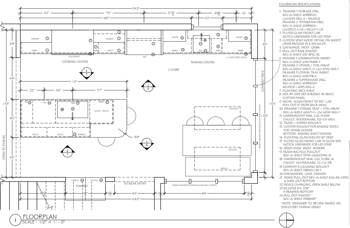
The new kitchen layout creates self-contained zones to allow everybody to be in the space at the same time. The cooking center allows the father – an avid cook – to work on multiple dishes without having to worry about being in anyone's way – especially the child’s. The baking center, where the mother often bakes along with their daughter, has its own sink and a view of her beloved garden. A new, bright eat-in area on the north side allows other family members to spend time in the kitchen as meals are being prepared. Flanking it are folding glass doors that can be opened all the way, blurring the boundary between inside and outside.

The material choices are thoughtful and focus as much on ease of maintenance as on their beauty. The palette is calm and traditional. A custom wallpaper accent in ‘bandhani’ motif provides a splash of color and is a nod to our clients’ Indian heritage.